

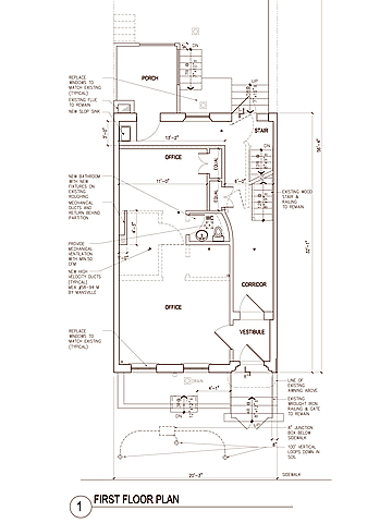
This is a single family town house renovation that cleaned up and re-arranged the spaces according to the client’s specific needs, with a rental office on the first floor and a master’s duplex above. A major infrastructure intervention was the installation of hi-pressure heating and ventilation system that used geo-thermal energy. The project is featured on this website as an example of an efficient co laboration between client and architect on a small scale and within a reasonable budget. Design was developed in 2000. Construction was completed in 2002.