

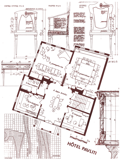
The House of Pavliti, located in the Old City of Plovdiv-the historic core of the city, part of the World Heritage List of UNESCO has been converted into a trade union’s head quarters, which featured offices, meeting spaces, and rooms for musical classes. The project I developed was for interior design and décor of the spaces, with lots of custom furniture, designed by my office and manufactured by local craftsmen. The design was developed in 1998.