txt-logo
logo
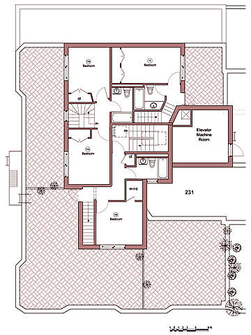
plan of the new penthouse addition.drawing by Bojidar Kadiev, 2011

The project is for renovation of two historic buildings that share an interior courtyard. A new elevator and lobby are designed to connect them through this common interior space. In order to keep the buildings operable during construction, the elevator had to be designed with stops at the intermediate landings, which required filing multiple pre determination requests at the DOB related to the associated accessibility and zoning issues. Another part of the project are multiple interior apartment renovations aimed at upgrading the quality of the finishes and improving some of the apartment layouts. Rooftop penthouse addition was designed to maximize the available floor area and convert some of the apartments into duplexes. Construction documents have been approved at the end of 2011. Construction is about to begin in early 2012.

231-235 second avenue, new york, ny